A jól megválasztott beltéri ajtók komfortosabbá,szebbé,melegebbé teszik otthonát

Beltéri ajtólapjaink szerkezete három oldalon falcolt papírrács, belső erősítésű ajtólap laminált felülettel, normál kulcsos zárral. Kilincs nem része az ajánlatnak.
Iridium felületű beltéri ajtó választható színei

Nyitási irány meghatározása
| Egyszárnyú nyíló ajtó JOBBOS | Egyszárnyú nyíló ajtó BALOS |
 |  |

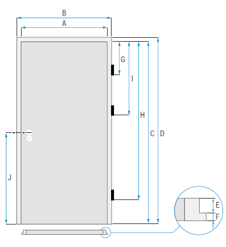
Ajtólap méretek
| Típus méret | A | B |
| 75 | 694 | 720 |
| 90 | 834 | 860 |
| 100 | 944 | 970 |
Részletek
| Méretek (mm) |
| C | 2057 |
| D | 2070 |
| E | 26 |
| F | 13 |
| G | 237 |
| H | 1672 |
| I | 777 |
| J | 1043 |
Tele kivitelű ajtólapjainkhoz utólag beépíthető állítható átfogó tok választható, Magyar Szabványos, 95-115, 120-140, 140-160 mm méretben. Ez a tokrendszer számos előnyt biztosít a korábban használt ajtótokokhoz képest.
 | Iridium "IR" felület Magas hőmérsékleten speciális ragasztó anyaggal préselt, több rétegű karc és kopásálló laminált felület, amely a felületét borító lakkrétegnek köszönhetően UV stabil és ellenáll a háztartási tisztítószereknek. Felülete a mikrobazázdált struktúrának köszönhetően a furnér felületet imitálja. |
 | Papírrács belső kitöltés Speciális technológiai eljárással készülő, méhsejt szerkezetű kartonpapír belső kitöltés az ajtólap fa keretszerkezetei közötti szabad területeken. |
 | Falcolt „K” lapél kialakítás Az ajtólap szélei derékszögű élekben találkoznak a falcolt oldalakon. A leggyakrabban használt egyszerű de stílusos lapél forma. |
Az útólag beépíthető tok előnyei
 | - egyszerű, gyors beépíthetőség
- fokozott ellenálló képesség a nedvességnek a pozdorja alapanyagnak köszönhetően
- rejtett rögzítési pontok, esztétikusan lekerekített élek a korszerű postforming technológiának köszönhetően
|
A tokmag alapanyaga pozdorja, a fix és mobil borítások MDF alapanyagból készülnek. Típustól függően a felület Dekorfólia (PRIMO), Prémium dekor (3D), Iridium vagy CPL színek közül választható ki. Átjáró tok (vaktok) kivitelben is megrendelhető. A függőleges és vízszintes tokelemek egy szállítási egységben, zárt kartondobozban kerülnek átadásra. A csomagolás tartalmazza a tok összeállításához szükséges kötő elemeket (a tokhoz tartozó pántokat is!) valamint az összeszerelési és beépítési útmutatót. Az ajtólap csomag nem tartalmazza a tokot, azt külön kell megvásárolni!
A falcolt állítható tok méretei (MSZ) [mm]

| Típus méret | Ajtó tok méretei (mm) | Falnyílás méret |
| A | B | C | D | szélesség | magasság |
| 75 | 679 | 702 | 723 | 834 | 750 | 2095 |
| 90 | 819 | 842 | 863 | 964 | 890 |
| 100 | 929 | 952 | 973 | 1074 | 1000 |
 | - A keret hatóköre 20 mm-es tartományban állítható.
|
Figyelem! Alap ajtólapjaink BB zár szerkezettel vannak szerelve, ha WC zár szerkezettel kívánja szerelni az ajtót, azt külön kell megvásárolni!